INFO
work
INFO
work
August Warnkross
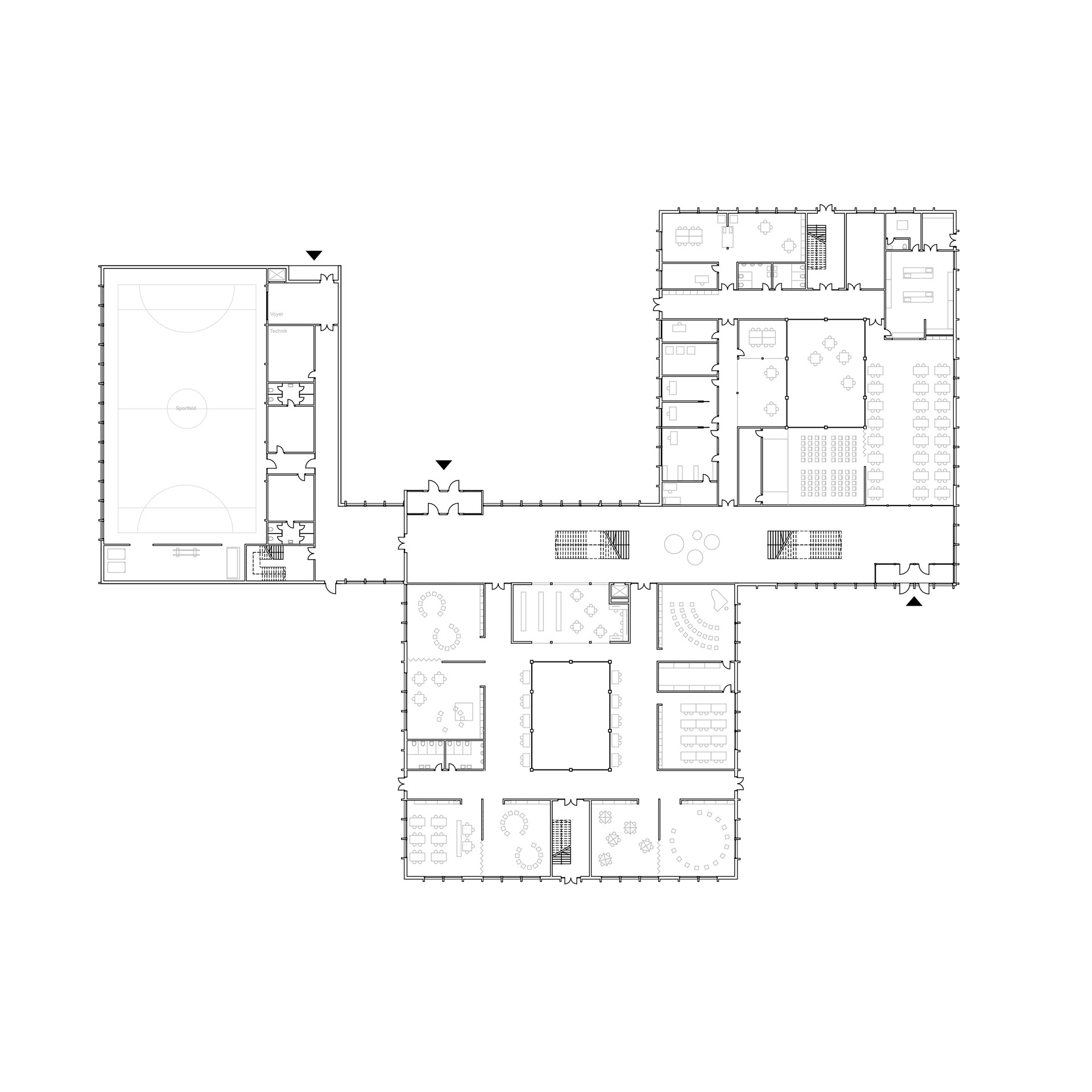
Project:
Grundschule Dresden
Location:
Dresden
Semester: 4th
Studio: Prof. Becker
back to projects
↑
Back to Top
accept Cookies ?
accept
deny